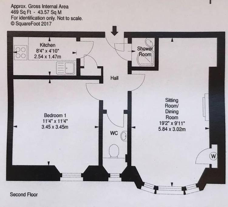
Grassmarket Gem


Otopark
Tüm alanlarda WiFi mevcuttur
Golf sahası (3 km içinde)
Yürüyüş
Sigara içilmeyen odalar
Aile odaları
Isıtma
Alerjisiz oda
Tesis genelinde sigara içmek yasaktır
İnternet hizmetleri
WiFi
Ücretsiz WiFi
Güneşlenme terası
Duman alarmları
Yorumlar
Tümü